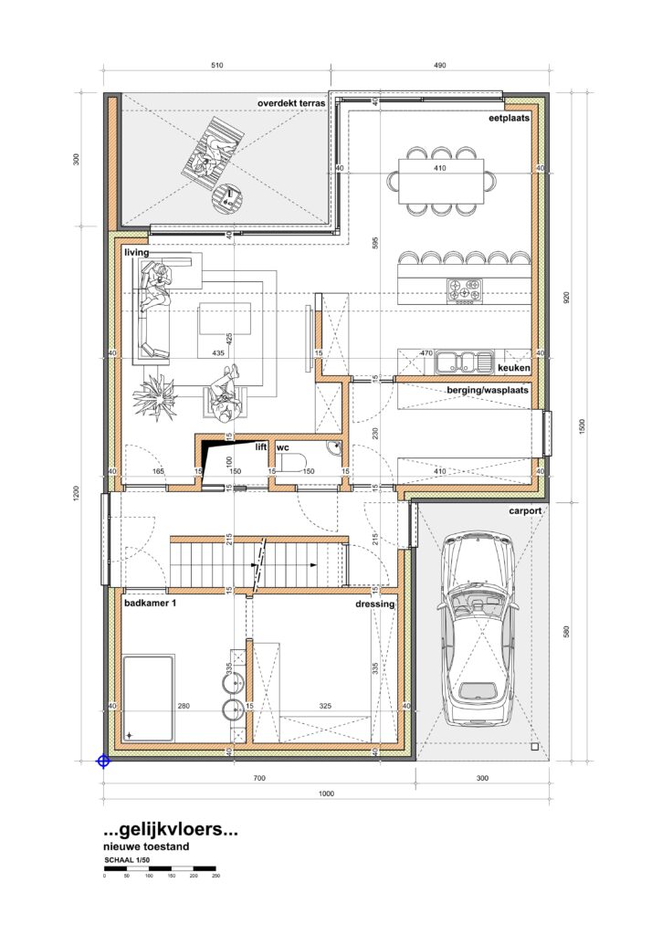
Modelwoning ‘Tipton’
276 m² |
3 |
2
Uw investering: 546.727 €
Ruwbouw winddicht: 382.709 €
Al onze modelwoningen kunnen volledig aangepast worden volgens uw wensen en noden. Contacteer ons voor een eerste bespreking. Prijzen zijn excl. BTW en kosten.
Opmerking: foto’s en schetsen op onze website zijn niet bindend.





















